Kanalgatan 19
1 100 000 kr Pris
-
Pris
1 100 000 kr Pris -
Area
43 kvm -
Avgift
2 897 kr -
Rum
1 rum -
Område
Centrum -
Byggnadsår
2020/2021 -
Typ
Lägenhet -
Driftskostnad
3 770 kr/år -
Tomt
Förråd entréplan
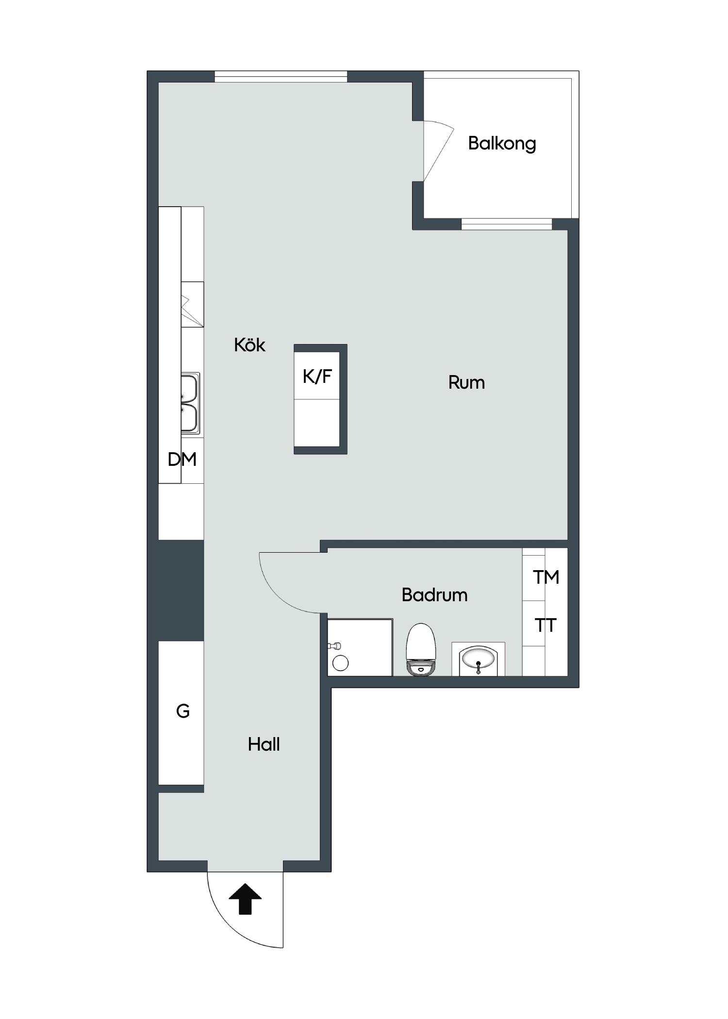
Lägenheten är inredd med påkostade materialval med kök från Vedum, exklusiva vitvaror, helkaklat badrum med dusch, tvättmaskin, torktumlare och bra förvaringsmöjligheter. Kök och vardagsrum är i öppen planlösning och de stora fönstren ger ett fint ljusinsläpp. Från köket stiger man ut på balkongen.
Alldeles runt knuten finner man stadens kulturkvarter och allt vad stadskärnan har att erbjuda.
Takterrassen på våning 12 är gemensam för alla boende i huset och erbjuder sittplatser med magnifik utsikt över hela staden. Ta med några kuddar, filtar och en korg med godsaker och njut av utsikten tillsammans i goda vänners lag.
Lägenheten har ett tillhörande förråd i entréplan.
Välkommen till en riktig cityvåning med himlen runt hörnet i Lilla Paris - Kristianstad
Ansvarig mäklare

Stäng ×















Interiör
- Antal rum: 1
- Hall: Välkomnande hall med stora möjligheter till förvaring iform av väggfasta garderober. Vackert trägolv som är genomgående i hela lägenheten.
- Badrum: Från hallen stiger man i ett rymligt badrum, med stilrent kakel/klinker och spotlights i taket. Duschdörrar i glas, kommod, wc, och handdukstork. I badrummet finns även tvättmaskin, torktumlare och gott om plats till förvaring.
- Kök: Stilrena köksluckor från Vedum, integrerad diskmaskin, exklusiv induktionshäll med fläktkåpa, vackra bänkskivor, inbyggnadsugn och micro. Kombinerad kyl/frys. Köket går i en vacker varmgrå nyans. Här ryms plats för ett matbord. Från köket har man utgång till balkongen.
- Vardagsrum: De stora fönstren skapar ett fint ljusinsläpp i lägenheten. Plats för soffa och/eller säng.
Byggnad
- Byggår: 2020/2021
- Fönster: 3-glas
- Uppvärmning: Fjärrvärme
- Övriga byggnader/utrymmen: Högst upp i huset finner man en gemensam magnifik takterass som får användas av de boende i huset. Här njuter man av enastående utsikt! Takterrassen har biotoptak, trätrall, sittplatser och lekyta.
Ventilation
- Typ: FTX system
Energideklaration
- Energideklaration: Utförd 2021-07-01
- Energiprestanda primärenergital: 68 kWh per kvm och år
- Energiklass: C
Balkong, uteplats och bilplats
- Typ av mark som ingår i upplåtelsen: Förråd entréplan
- Balkong: Ja
Andelstal och reparationsfond
- Andel i förening: 0.83467 %
- Bostadens indirekta nettoskuldsättning: 599 317 kr, Bostadsrättens indirekta nettoskuldsättning baseras på föreningens skulder/lån minus föreningens räntebärande tillgångar och likvida medel, multiplicerat med bostadsrättens andelstal för årsavgifter. Beräkningen baseras på senaste tillgängliga årsredovisningen (2023). För mer information kontakta ansvarig fastighetsmäklare.
Våning/hiss
- Våning: 4 av 12, hiss finns
Drift
- El: 1 110 kr/år
- VA: 450 kr/år
- Försäkring: 110 kr/år
- Övrigt: 2 100 kr/år
- Kommentar: Övrigt avser 175 kr/mån som tillkommer i obligatorisk avgift för bredband/tv.
- Summa driftskostnader: 3 770 kr/år
- Elförbrukning: 644 kWh/år
Föreningen
- Namn: BRF No 12 I Kristianstad
- Allmänt om föreningen: Bo på ett av Kristianstads mest centrala och bästa läge, med utsikt över kanalen.
Närhet till allt vad stadskärnan har att erbjuda restauranger, kulturliv, service, butiker och skolor. Utanför porten finner ni Hästtorget med alla dess förbindelser.
Fastigheten No.12 består av 12 våningar och är ritad av arkitekten Claus Uldal på Kanozi Arkitekter i Malmö. Här finner man 76 unika bostadsrätter som erbjuder stora sociala sällskapsytor och en hänförande utsikt över Kristianstad. - Renoveringar: 2021/2022 - Två verksamhetslokaler i bottenplan som inrymmer två hyresgäster.
2022 - Föreningen diskuterar att bygga ett uterum på takterrassen.
2022 - Inglasning av balkongerna. - Parkering: Parkering finns att hyra i intilliggande fastighet för 500 kr/mån.
- Tv och Bredband: Avgiften för TV (grundutbud) och bredband (500) via Tele 2 (ComHem) är ett obligatoriskt tillägg på 175 kr/mån som tillkommer på månadsavgiften.
- Övrigt: Lägenhetsförråd finns antingen separat på bottenvåning eller inne i den egna lägenheten.
Gemensamt elavtal med individuell mätning. Avläsning av förbrukning debiteras på respektive lägenhet och ej specifik person. Detta regleras vid försäljning mellan säljare och köpare.
Hjärtstartare finns i entrén
All information om föreningen har inhämtats genom kontakt med föreningens styrelse och årsredovisning/stadgar, kontrollerat 24-11-15. Köpare uppmanas att stämma av information med föreningen. - Antal lägenheter: 76
- Antal lokaler: 2
- Överlåtelseavgift: 1 433 kr
- Pantsättningsavgift: 573 kr betalas av köparen
- Pantsatt: Ja
- Organisationsnummer: 769636-7379
- Överlåtelseavgift betalas av: Köpare
- Äkta/Oäkta förening: Äkta
- Tillåter juridisk person: Ja
- Tillåter delat ägande: Ja
- Äger föreningen marken: Ja
- Ekonomi: Föreningen planerar att höja månadsavgiften 2 - 4% from 250101
- Försäkring: Fastighetsförsäkring tecknad i Moderna försäkringar. Bostadsrättstillägg ingår ej.
- Gemensamma utrymmen: Takterass På bottenvåning finns en mindre yta avsedd för barnvagn, rullatorer etc Cykelparkering under skärmtak vid entrén Miljörum på bottenvåning
Övrigt
- Gemensamt elavtal med individuell elmätning. Avläsning av förbrukning debiteras på respektive lägenhet och ej specifik person. Detta regleras vid försäljning mellan säljare och köpare. All information om föreningen har inhämtats genom årsredovisningen och föreningens styrelse (kontrollerat 2024-11-07). Slutgiltig köpare uppmanas att kontakta representant från föreningen för att stämma av föreningsinformationen.